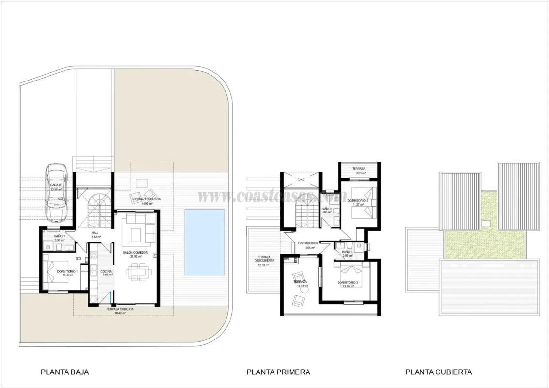
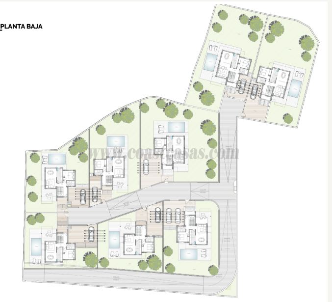
Villa en La Nucia, con 170 m² construidos, 333 m² metros de parcela, 3 dormitorios, 3 baños, buen estado, piscina privada
Esta villa ha sido diseñada para maximizar el disfrute de sus amplios espacios. Con una superficie de 150 m² distribuidos en dos plantas, esta propiedad independiente se encuentra en una magnífica parcela de 345 m². El recinto está rodeado por un cerramiento perimetral y cuenta con una piscina, zona de estacionamiento, acceso motorizado y un jardín cuidadosamente terminado con gravas y plantas ornamentales, además de una barbacoa. La villa ofrece en la planta baja una cocina americana que se abre al salón-comedor, un aseo de cortesía, y el dormitorio principal con baño en suite. La planta superior alberga dos dormitorios adicionales, un cuarto de baño y una amplia terraza. Otro aspecto a destacar es la flexibilidad en el diseño, ya que esta vivienda puede ser construida en una sola planta y el número de habitaciones y baños puede adaptarse a las necesidades del comprador. Se recomienda consultar las diferentes opciones disponibles para personalizarla. Vivir en este entorno ofrece una mezcla perfecta entre modernidad y naturaleza, proporcionando un hogar ideal para aquellos que buscan tranquilidad sin renunciar a los beneficios de una ubicación privilegiada. La villa ofrece lo mejor para aquellos que desean comenzar una nueva vida en un lugar donde el confort y el estilo de vida se integran de manera armoniosa.
