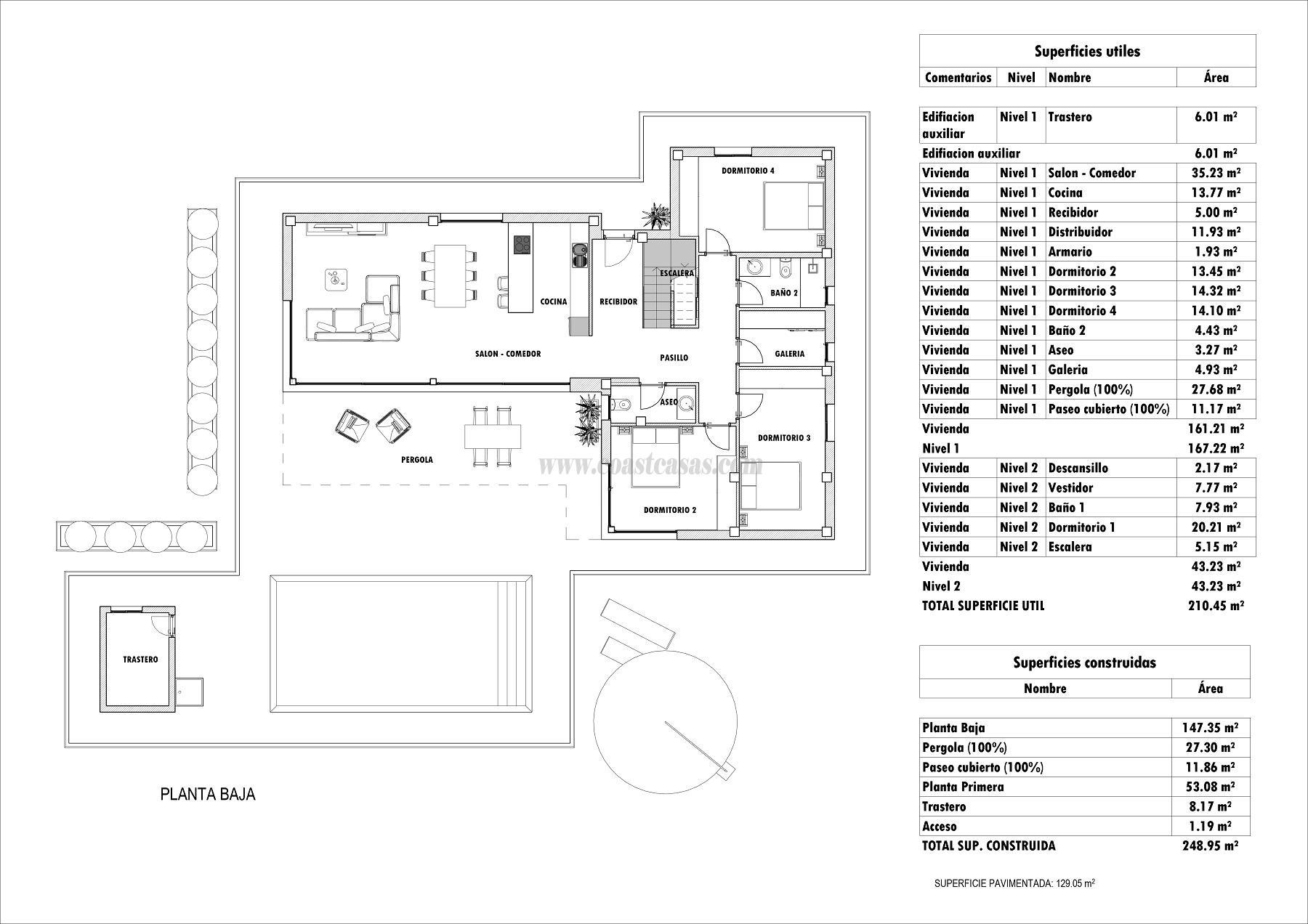
Villa in La Romana, with 127 m² built, 192 m² plot sq.meters, 4 bedrooms, 2 bathrooms, 1 garage/s, good condition, private pool, water energy solar panel
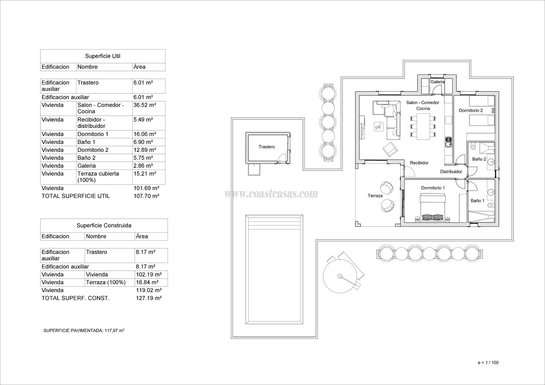
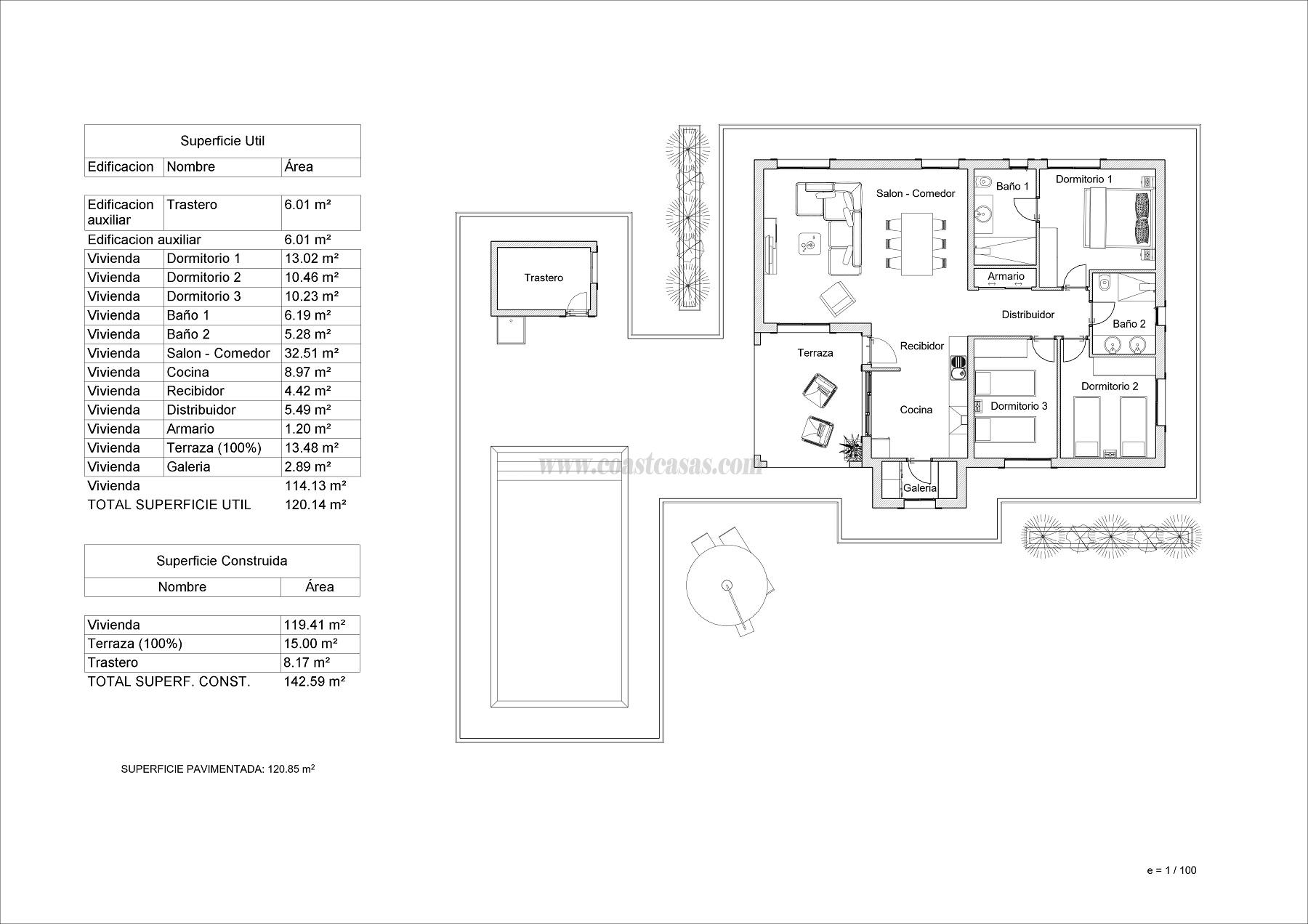
Experience the tranquility of rural living in La Romana with these exquisite villas set on generous plots starting from 10,000 m². Choose between two charming designs, either modern or traditional Spanish, tailored to suit your personal tastes and requirements. These residences offer a choice of 2 to 3 bedrooms and 2 bathrooms, featuring built-in wardrobes for convenient storage. The garden surrounding the property is thoughtfully designed with stamped concrete and an area of 15 m² of artificial grass, providing a low-maintenance, yet functional outdoor space. Unwind in your private 8x4 meter swimming pool, complete with a handy outdoor shower. The 2,500 m² plot is fully enclosed, using wire mesh and a stone wall, guaranteeing both privacy and security. Access to the villa is facilitated by an electric vehicle gate along with a separate pedestrian entrance. Emphasizing sustainability and comfort, the villa includes a pre-installation for solar panels and a cozy fireplace in the living room. The bathrooms and kitchen are fully finished, leaving you with the option to add your preferred appliances. Set in the charming environment of La Romana, these villas blend serene countryside living with modern conveniences, making them an ideal choice for those seeking a peaceful retreat without compromising on quality or style. With prices ranging from 256,000 € to 295,000 €, these properties offer an appealing mix of affordability and luxury. Sizes range between 115 m² to 154 m², providing ample space for families or individuals alike.
