Villa en Calpe, con 898 m² construidos, 1042 m² metros de parcela, 4 dormitorios, 4 baños, 1 garaje/s, buen estado, piscina privada
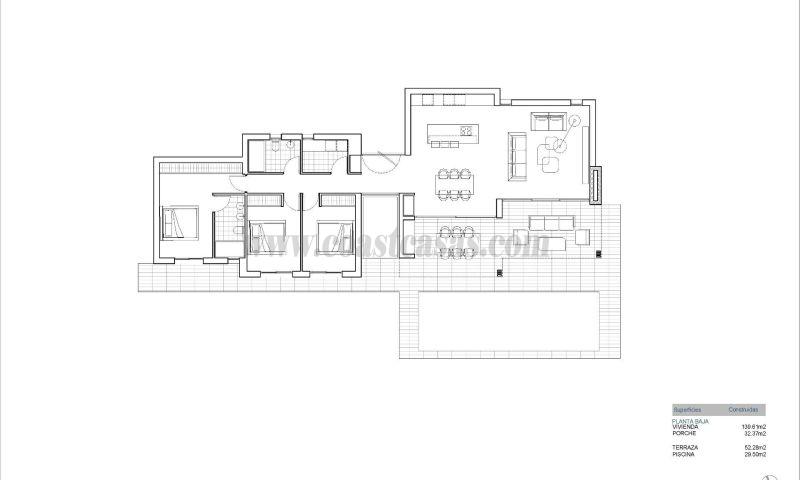
Esta impresionante villa de lujo se sitúa en una zona tranquila de Calpe, Alicante, proporcionando un equilibrio perfecto entre serenidad y cercanía a las vibrantes dinámicas de un destino turístico. El centro de la ciudad y sus playas se encuentran a aproximadamente 5.400 metros, ofreciendo un entorno ideal para disfrutar de todo lo que la región tiene para ofrecer. Con una superficie total de 898 m² en un terreno de 1.042 m², esta villa ofrece vistas espectaculares al mar, al icónico peñón natural y al encantador entorno urbano. La propiedad está distribuida en tres plantas, conectadas por escaleras interiores y un ascensor. Desde la entrada del jardín, que es automatizada, se accede al garaje ubicado en la planta semisótano junto a un amplio espacio de aparcamiento exterior. En la planta semisótano se encuentra un garaje de 52 m² con acceso directo desde la calle, así como un lavadero y una bodega. En la planta principal, el espacioso salón-comedor se abre a un porche de 25 m² y a una piscina con una terraza de 78 m². También se destaca la moderna cocina abierta, completamente equipada. Esta planta alberga además dos dormitorios con baño en suite y un aseo de cortesía, optimizando la comodidad y disfrute del espacio. La planta alta ofrece dos dormitorios dobles, cada uno con su baño en suite y acceso a dos terrazas descubiertas, proporcionando un toque de privacidad y exclusividad para los residentes. La villa incluye una serie de características premium que garantizan la máxima calidad de vida. La carpintería de primera calidad con cristal de seguridad, la cocina equipada con electrodomésticos de alta gama, la iluminación LED eficiente y el sistema de aerotermia con calefacción por suelo radiante aseguran confort y eficiencia energética. Además, cuenta con aire acondicionado frío/calor, armarios empotrados, persianas eléctricas, y servicios de seguridad avanzados. La piscina desbordante de diseño rectangular, la zona de barbacoa, el jardín y la bodega están orientados hacia el sur, lo que asegura un estilo de vida activo al aire libre. Calpe, además de su impresionante belleza natural, ofrece modernas comodidades y una calidad de vida excepcional. Desde una comunidad local vibrante hasta una gastronomía que logra un delicioso equilibrio entre tradición y modernidad, el entorno se convierte en un lugar ideal para el confort y disfrute. Con un clima envidiable durante todo el año, es el refugio costero perfecto que combina naturaleza, ocio y cultura.
