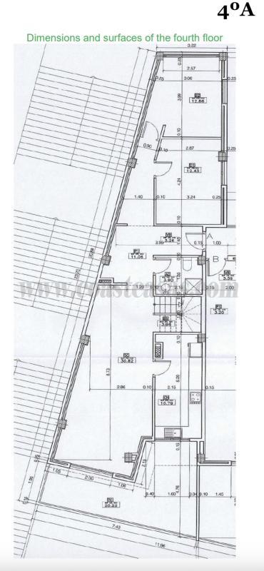
Apartamento en Relleu, con 115 m² construidos, 2 dormitorios, 2 baños, 1 garaje/s, buen estado, cocina americana, piscina privada, gimnasio
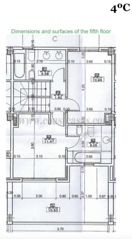
Bienvenido a nuestros exclusivos apartamentos, donde la elegancia se fusiona con la naturaleza. Descubra una selección de hogares de 2 a 3 dormitorios, cada uno meticulosamente diseñado. Elija entre propiedades que ofrecen desde 99 m² hasta 194 m² de espacio habitable lleno de sofisticación. Relájese en áreas de estar amplias y luminosas, mientras disfruta de las impresionantes vistas que rodean estas viviendas. Aproveche la oportunidad de vivir en un lugar donde el lujo moderno se mezcla con un toque auténtico español. Los precios oscilan entre 144 000 € y 254 000 €, garantizando una amplia oferta para distintas necesidades y presupuestos. Experimente la tranquilidad y el encanto de un entorno sereno, complementado por la comunidad vibrante de este lugar. Disfrute cocinando en una moderna cocina americana o pase tiempo en una espaciosa terraza que le conecta con la belleza natural de la región.
