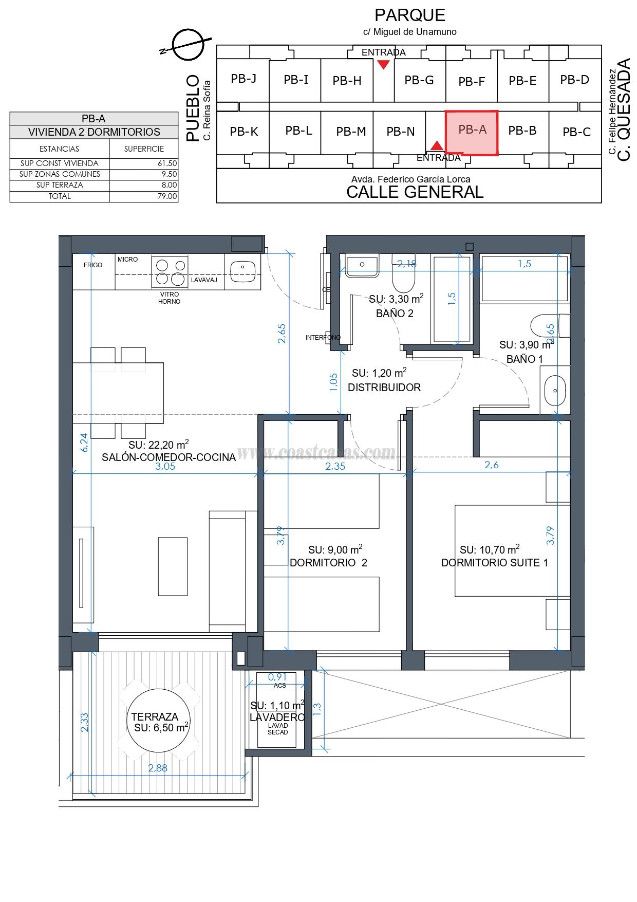
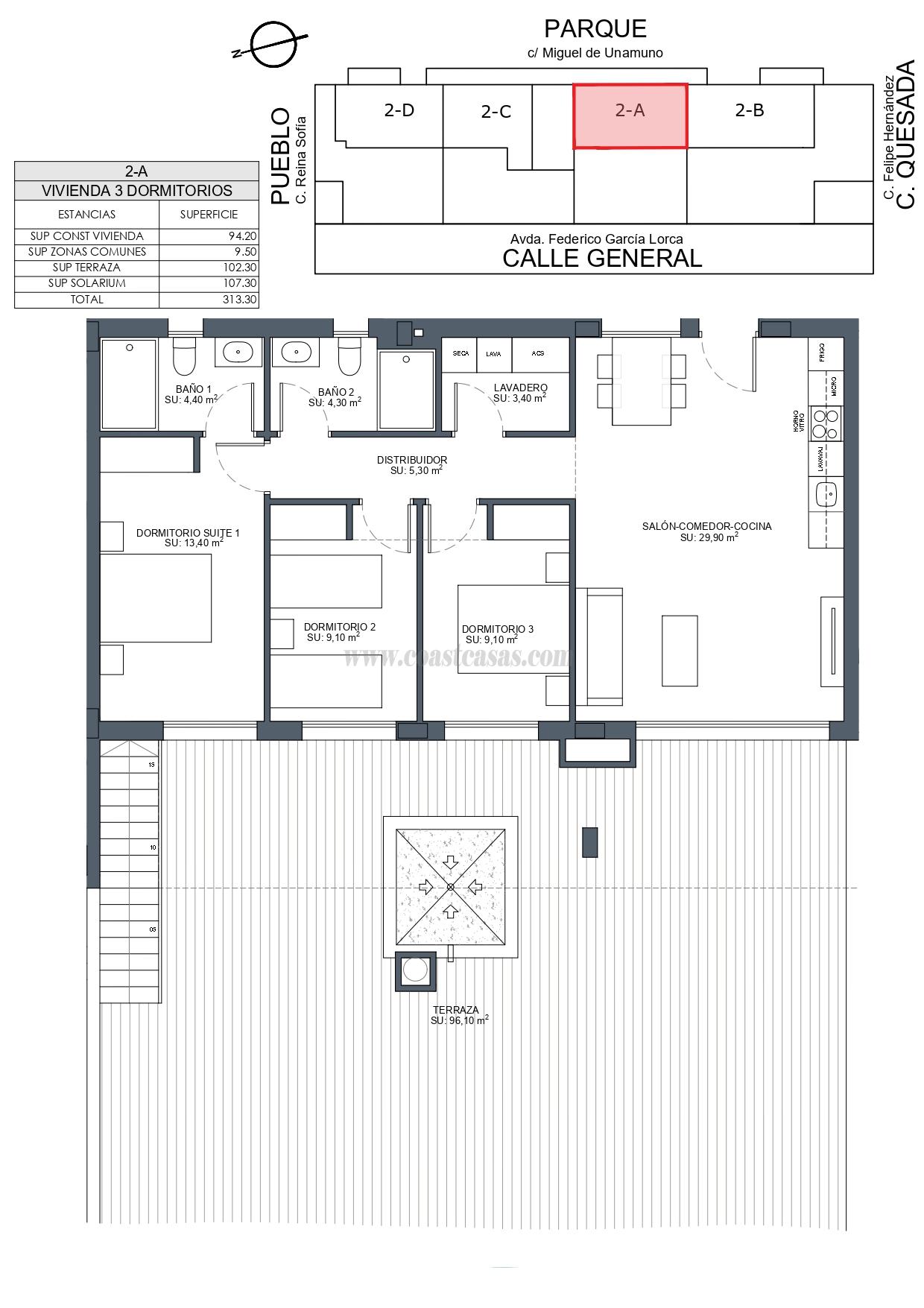
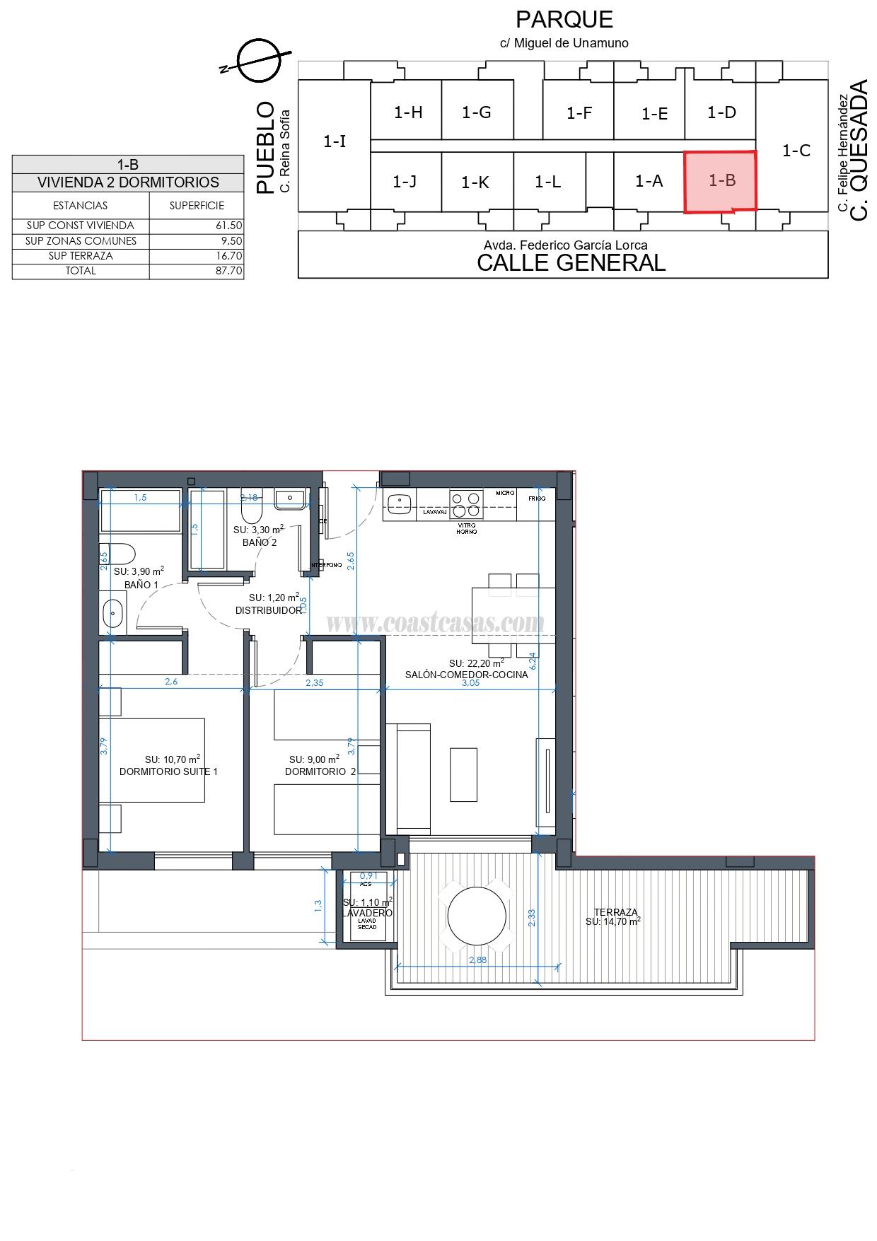
Apartamento en Benijofar, con 241 m² construidos, 2 dormitorios, 2 baños, 1 garaje/s, buen estado, 1 terraza(s)
Descubra un nuevo residencial ubicado en el encantador pueblo de Benijofar, en Alicante. Este lugar es reconocido por su belleza en el corazón de la Vega Baja del Segura. La ubicación es privilegiada, destacándose por su cercanía a prestigiosos campos de golf, parques naturales imponentes y fascinantes sitios históricos y culturales, lo que hace de Benijofar un destino inigualable para quienes buscan una calidad de vida excepcional. Aquí puede disfrutar plenamente del encantador estilo de vida mediterráneo en un entorno verdaderamente único. Este proyecto emocionante ofrece una variedad de opciones habitacionales, desde plantas bajas hasta lujosos áticos. Con una selección de 30 viviendas disponibles, cada una diseñada para satisfacer diferentes estilos de vida y necesidades, se ofrecen opciones de 2 a 3 dormitorios, con superficies que oscilan entre 79 m² y 241 m², y con precios entre 253 000 € y 441 000 €. Estas características aseguran que encontrará la vivienda perfecta que se ajuste a sus expectativas. Vivir en Benijofar es adentrarse en una comunidad vibrante y acogedora que ofrece no solo paisajes hermosos, sino también un ambiente social cálido y enriquecedor. Su ubicación estratégica permite disfrutar de las maravillas de la Costa Blanca, manteniendo a su vez una conexión directa con la tradición y cultura local. Sin lugar a dudas, Benijofar es el lugar ideal para disfrutar de una vida llena de serenidad y placer.
